11-point locking as standard
Locking points engage the frame in all 4 directions
4 lock-side bolts + latch · Top & bottom bolts · Fixed hinge-side bolts


A front door is more than a visual statement. It is the primary barrier between your home and the outside world. At R-Secure, we specialise in bespoke steel security doors that combine certified protection, refined design, and long-term reliability — without compromising the character of your property.
Every R-Secure door is precision built for long term strength and reliability, a critical safeguard given that 65–75% of residential burglaries occur through the front door.
R-Secure doors are engineered as long-term investments:
Zinc-galvanised steel delivers corrosion resistance, while precision craftsmanship ensures lasting performance and reliability.
Finished with MEDITE TRICOYA EXTREME external panels, our doors offer outstanding weather resistance, and long-term dimensional stability.

RC3 / RC4
By international standard EN 1627

FB4 / FB6 / FB7
By international standard EN 1522

EI30 / EI45
By international standard EN 16034

44.7 dB ± 1.5 dB
By international standard EN ISO 12567

Up to 1.1 W/(m2K)
By international standard EN 1522

200 000 cycles
By international standard EN 1191
Hover over each point to learn more.
Precision isn’t visible at first glance, but it makes a big difference.
Multi-point locking with different access controls
Locking points engage the frame in all 4 directions
4 lock-side bolts + latch · Top & bottom bolts · Fixed hinge-side bolts
Additional locking points
All locking points operate from a single mechanical system for uniform performance
No keys. No codes. Instant access.
Powered by eKey · Compatible with smart home & access control systems
Push-to-exit • Fire compliance • Controlled traffic
Access for communal entrances, commercial doors & fire rated exits
Every project starts differently, but the result is always the same: a satisfied client.
Browse our gallery and choose a design we have already made. Share the gallery reference and rough structural opening dimensions, and we will take care of the rest.
Starting from an empty opening, a sketch, or a reference image — we help shape the idea, answer the technical questions, and guide pricing for the final build.
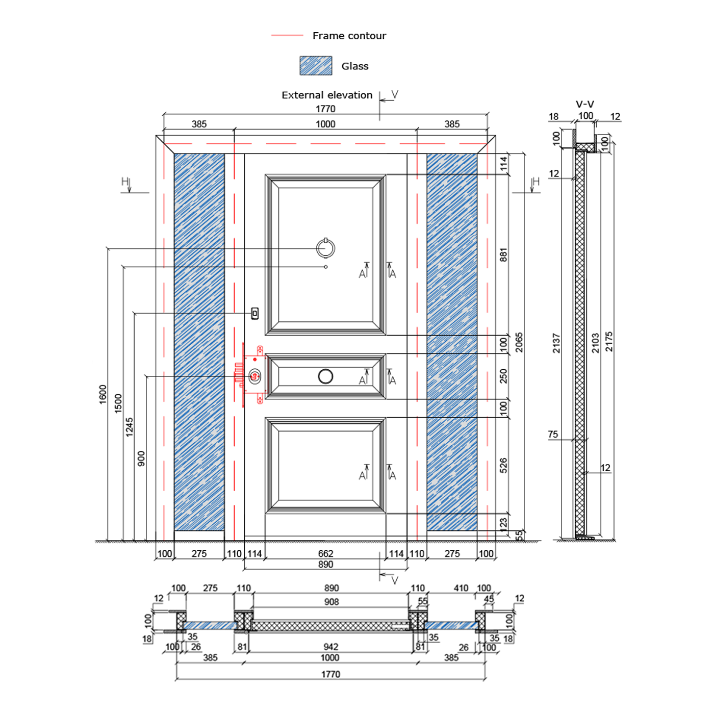
Planning for a door
Your sketch / design
Our technical drawing
Finished result
Any RAL Classic colour available for factory-sprayed finishes. Choose matt or high gloss. Options for woodgrain.
We work closely with architects, developers, and trade partners on bespoke steel security doors for residential and commercial projects
Installation guidance is available for new commercial customers
If you have any further questions, feel free to contact us info@rsecure.co.uk.
Whether you are exploring options or have defined specifications in place, we’re here to guide you through the next step. Book a consultation or request a tailored quote to discuss security, performance, and finish in detail.